INICIO  /SALA DE NOTICIAS  / CLESCRANE proporciona una grúa puente de una sola viga personalizada para una empresa de construcción en Panamá

CLESCRANE proporciona una grúa puente de una sola viga personalizada para una empresa de construcción en Panamá

Noticias de Compañía - Mar 5, 2026
Al proporcionar una solución de estructura de acero para su cliente, una empresa de construcción en Panamá encontró un desafío técnico: los obstáculos en el sitio interferían con la viga de refuerzo de la viga de vía, lo que impedía una instalación adecuada. A pesar de múltiples intentos, no se encontró una solución efectiva. Finalmente, el cliente recurrió a CLESCRANE en busca de apoyo profesional.

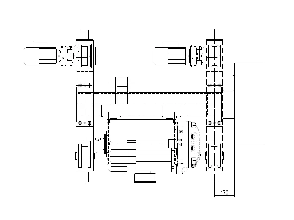
Después de una comunicación detallada con el cliente, los ingenieros de CLESCRANE proporcionaron una solución óptima y superaron con éxito la dificultad. Personalizamos una grúa puente de una sola viga (CHS3t×22.39m×5.5m CLASS D) para este proyecto, equipada con un sistema de control remoto para garantizar un funcionamiento flexible y eficiente.

Esta solución ayudó a la empresa de construcción de Panamá a resolver el problema de instalación en el sitio, mejoró significativamente la eficiencia operativa y permitió que el proyecto se mantuviera en el cronograma.
¿Tienes un proyecto?
Nos encantaría ayudarte.
Cuestionario de encuesta en línea

CONTÁCTENOS

Producto:
*
País:
Nombre:
*
Email:
*
Whatsapp:
TEL:
Por favor llámame de nuevo
Compañía:
*
Título profesional:
*
Ubicación del proyecto:
Más detalles:

SOLICITUD DE ACCESO AL SOFTWARE

Nombre:
*
Email:
*
País:
Compañía:
*
Título profesional:
TEL:
Por favor llámame de nuevo